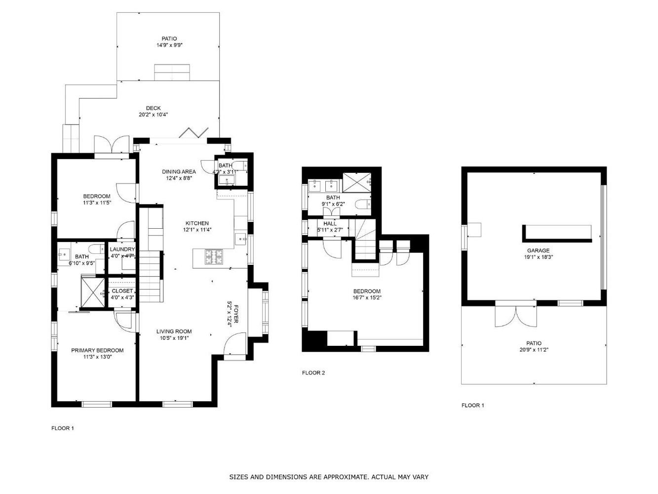
Oakland Ave Capitola Historic House Rebuild and New Garage Addition DO YOU HAVE ANY QUESTIONS?FEEL FREE TO CONTACT US! Name Email Address Message Submit Contact Us wsbuilders@gmail.com (831) 428-2752 162 Wolverine Way Scotts Valley, CA 95066CA Lic # 874257Follow Us Online! facebook instagram